Unit A
Legal Name: The Barrister
Public Name: The Victoria
The Barrister” communicates traditional legal prestige and status within the profession. “The Victoria” adds timeless luxury and elegance, evoking royal heritage and British-Canadian sophistication

Start from $1.59M
1936
SQFT
3
BED
3.5
BATH
1936
SQFT
3
BED
3.5
BATH
Features
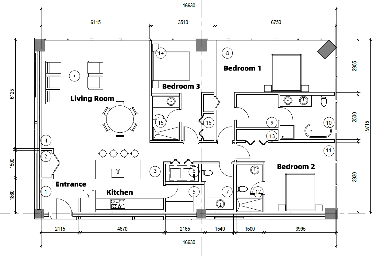
ROOM NAME | M. SQ. | FT. SQ. |
|---|---|---|
1.ENTRY | 3 | 32.2 |
2.CLOSET | 1 | 10.7 |
3.KITCHEN | 11 | 118.4 |
4.LIVING/DINING | 51 | 548.9 |
5.PANTRY |
3 |
32.2 |
6.POWDER ROOM | 4 | 43 |
7.LAUNDRY | 2 | 21.5 |
8.MASTER BEDROOM | 22 | 236.8 |
9.WALK-IN-CLOSET | 5 | 53.82 |
10.BATHROOM | 8 | 86.1 |
11.BEDROOM | 18 | 193.7 |
12.BATHROOM | 4 | 43 |
13.CLOSET | 2 | 21.5 |
14.BEDROOM | 13 | 139.9 |
15.CLOSET | 4 | 43 |
16.BATHROOM | 1 | 10.7 |
Building Specifications
Structural & Framing
Interior Specifications
Flooring
Mechanical & Electrical
Energy Efficiency & Insulation
Upgrades & Customizations
Warranty & Post-Possession Service
Building Schematics

















