Unit D - Penthouse
Legal Name: The Chancellor
Public Name: The Mount Royal
The Chancellor” evokes the pinnacle of legal and academic honor. “The Mount Royal” captures grandeur, legacy, and a sense of geographic pride—regal, rare, and unmistakably elite.
Lower

Upper

Start from: $2.89M
3872
SQFT
3 + Den
BED
3 Full + 2 Half
BATH
3872
SQFT
3+ Den
BED
3+ 2 Half
BATH
Features
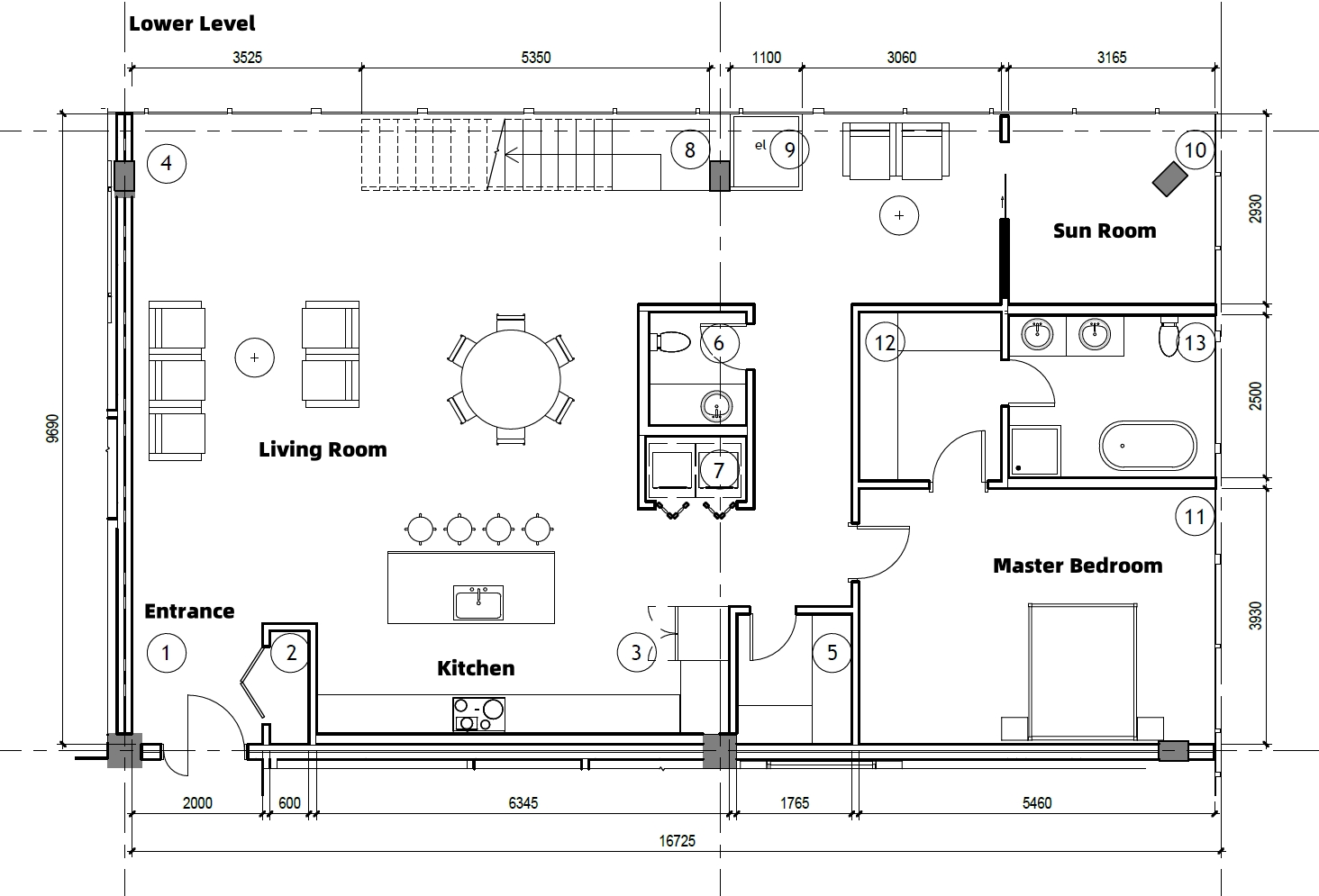
Lower Level
ROOM NAME | M. SQ. | FT. SQ. |
|---|---|---|
1.ENTRY | 4 | 43 |
2.CLOSET | 1 | 10.7 |
3.KITCHEN | 15 | 161.4 |
4.LIVING/DINING | 70 | 753.4 |
5.PANTRY |
4 |
43 |
6.POWDER ROOM | 3 | 32.2 |
7.LAUNDRY | 2 | 21.5 |
8.STAIRS | 11 | 118.4 |
9.ELEVATOR | 2 | 21.5 |
10.SUNROOM | 9 | 96.8 |
11.MASTER BEDROOM | 22 | 236.8 |
12.WALK-IN-CLOSET | 6 | 64.5 |
13.BATHROOM | 8 | 86.1 |
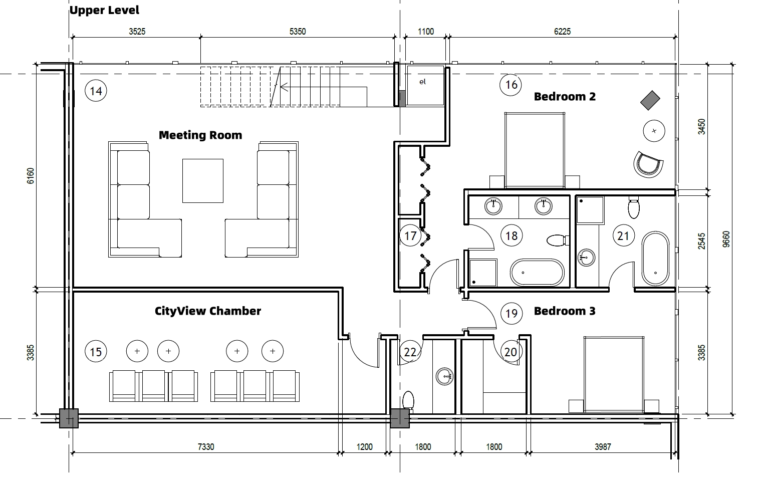
Upper Level
ROOM NAME | M. SQ. | FT. SQ. |
|---|---|---|
14.LIVING/DINING | 61 | 656.6 |
15.MOVIE ROOM |
28 |
301.3 |
16.MASTER BEDROOM | 26 | 279.8 |
17.CLOSET | 3 | 32.2 |
18.BATHROOM | 7 | 75.3 |
19.BEDROOM | 16 | 172.2 |
20.WALK-IN-CLOSET | 4 | 43 |
21.BATHROOM | 8 | 86.1 |
22.POWDER ROOM | 4 | 43 |
Building Specifications
Structural & Framing
Interior Specifications
Flooring
Mechanical & Electrical
Energy Efficiency & Insulation
Upgrades & Customizations
Warranty & Post-Possession Service
Building Schematics

















